1、采用全衬胶阀板,密封效果好,无泄漏。经久耐
2、在双室隔膜的膜片压板装1个节流装置,承启关闭、打开的作用。
3、采用双室隔膜传动机构,阀门开启平稳快捷,比活塞式阀门具有以下优点:
a. 无运动磨损,不会因杂质而产生漏水;b.对泥沙淤积不敏感;c.不需要润滑,无机械磨损,无定期更换的橡胶制品;
4、驱动介质压力水可直接采用自来水或本水池上部清水,(压力≥0.05MPa)操作方便。
5、自动化程度高,可实现远距离自动控制和集中控制。
零件名称 | 阀体、阀盖 | 膜片压板、阀盘 | 阀杆 | 膜片 |
材料 | 铸铁、球铁、碳钢、QT450 | 球铁、青铜 | 不锈钢 | 尼龙强化橡胶 |

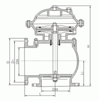
DN | 100 | 150 | 200 | 250 | 300 | 350 | 400 |
L | 160 | 190 | 225 | 260 | 280 | 315 | 340 |
L1 | 120 | 150 | 190 | 220 | 260 | 300 | 340 |
H | 370 | 440 | 530 | 615 | 785 | 880 | 970 |
版权所有:博纳斯威阀门股份有限公司 地 址:天津市宝坻区九园工业园5号路
版权所有:博纳斯威阀门股份有限公司
地 址:天津市宝坻区九园工业园5号路